Dưới đây là dự án thiết kế nội thất nhà 1 trệt 1 lầu ở Hưng Yên mà công ty nội thất Foxury Home thi công năm 2019
Contents
Mẫu nhà 1 trệt 1 lầu nhiều cây xanh
- Chủ đầu tư:Anh Thịnh
- Địa điểm:Hưng Yên
- Loại hình:Thiết kế nhà phố hiện đại
- Diện tích khu đất:150 m2
- Diện tích xây dựng:180 m2
- Số tầng:1,5 tầng
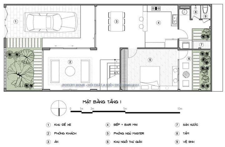
- Công năng:Tầng 1: Sân vườn, gara, phòng khách, bếp, phòng ăn, phòng ngủ, sân sau. Tầng 2: 2 phòng ngủ, sân chơi
- Đơn vị thiết kế: Foxury Home
- Tổng mức đầu tư:900 triệu
- Năm thực hiện:2019
Chi tiết dự án thiết kế nội thất nhà 1 trệt 1 lầu nhà anh Thịnh

Bản vẽ công năng ngôi nhà


Thiết kế nội thất
Nội thất hành lang

Nội thất bếp

Nội thất phòng ngủ


Nội thất nhà vệ sinh


Công ty thiết kế thi công nội thất nhà phố trọn gói uy tín
Foxury Home là công ty chuyên thiết kế thi công nội thất nhà phố uy tín, giá rẻ. Thông tin liên hệ:
Xưởng sản xuất: KĐT mới Thành Đông, Liên Hồng, TP Hải Dương (cách BV Nhi HD 500m).
Hotline: 0896118555 – 0896119555
Website: https://foxuryhome.com/
Email: foxuryhome@gmail.com

Nội thất phòng ngủ