Dự án thiết kế nội thất nhà 5 tầng có thang máy V-Line nhà anh Vương tại Quảng Ninh được công ty Foxury Home thực hiện năm 2022.
Contents
Thiết kế nhà 5 tầng có thang máy V-Line
- Chủ đầu tư: Anh Vương
- Địa điểm: Uông Bí, Quảng Ninh
- Loại hình: Thiết kế nhà phố hiện đại
- Diện tích khu đất: 72 m2
- Diện tích xây dựng: 325 m2
- Số tầng: 4,5 tầng
- Công năng:Tầng 1: Gara. Tầng 2: Phòng khách, bếp, phòng ăn. Tầng 3: 1 phòng ngủ Master, 1 phòng ngủ con cái. Tầng 4: 2 phòng ngủ. Tầng tum: Phòng thờ, sân phơi, sân chơi.
- Đơn vị thiết kế: Foxury Home
- Tổng mức đầu tư: 2,9 tỷ
- Năm thực hiện: 2022
Chi tiết dự án thiết kế nội thất nhà 5 tầng Vline
Bản vẽ 3D

Bản vẽ thiết kế công năng
Công năng tầng 1

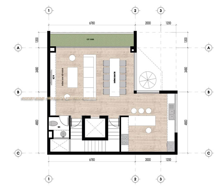
Công năng tầng 2
Công năng tầng 3
Công năng tầng 4
Công năng tầng 5 
Thiết kế nội thất
Nội thất phòng khách



Nội thất phòng ăn


Đơn vị thiết kế nội thất nhà 5 tầng có thang máy uy tín
Foxury Home là công ty chuyên thiết kế thi công trọn gói nội thất nhà phố, nhà mái thái, nhà mái Nhật…
Xưởng sản xuất: KĐT mới Thành Đông, Liên Hồng, TP Hải Dương (cách BV Nhi HD 500m).
Hotline: 0896118555 – 0896119555
Website: https://foxuryhome.com/
Email: foxuryhome@gmail.com




