So với gỗ tự nhiên thì tủ áo gỗ công nghiệp ngày càng được nhiều người ưa chuộng. Vậy ưu nhược điểm của tủ quần áo gỗ công nghiệp là gì? Phân loại và kích thước tủ áo gỗ công nghiệp cụ thể ra sao? Cùng Foxury Home tìm hiểu chi tiết ở bài viết này!
Contents
- Ưu nhược điểm tủ áo gỗ công nghiệp
- Phân loại tủ áo gỗ công nghiệp
- Cấu tạo tủ áo gỗ công nghiệp
- Tiêu chuẩn kích thước tủ quần áo gỗ công nghiệp bạn cần biết
- Kích thước tủ áo gỗ công nghiệp
- 1/ Kích thước tủ quần áo 1 cánh
- 2/ Kích thước của tủ quần áo gỗ công nghiệp 2 cánh 2 buồng
- 3/ Kích thước tủ quần áo 2 buồng tiêu chuẩn
- 4/ Kích thước tủ quần áo 3 buồng 4 cánh
- 5/ Tiêu chuẩn kích thước tủ quần áo 4 buồng
- 6/ Kích thước tủ quần áo 5 cánh tiêu chuẩn
- 7/ Kích thước tiêu chuẩn tủ quần áo 6 cánh
- 8/ Kích thước tiêu chuẩn tủ quần áo cánh lùa
- 9/ Kích thước tiêu chuẩn của tủ quần áo tủ âm tường
- 10/ Kích thước tủ quần áo trẻ em
- 11/ Kích thước tủ quần áo theo lỗ ban
- 12/ Kích thước tủ quần áo chữ L
- Địa chỉ bán tủ quần áo gỗ công nghiệp giá rẻ 2025
Ưu nhược điểm tủ áo gỗ công nghiệp
Tủ áo quần gỗ công nghiệp cũng có rất nhiều loại với giá thành khác nhau. Tủ quần áo rẻ từ gỗ MFC có giá thành thấp nhất thị trường, bề mặt gỗ sẽ thấy các dăm gỗ lởm chởm nếu để hở phần lõi. Các loại tủ gỗ công nghiệp có giá rẻ đa phần làm từ loại gỗ này nên độ bền không cao. Tủ gỗ MDF hay tủ gỗ HDF sẽ có độ bền cao hơn và giá cả cũng cao hơn gỗ MFC.

Tủ quần áo gỗ công nghiệp có giá thành thấp hơn, phong cách hiện đại, màu sắc đa dạng; thi công nhanh nhưng không thể gia công các chi tiết nhỏ như gỗ tự nhiên, có tuổi thọ khoảng 10 – 15 năm hoặc có thể hơn nếu bảo quản tốt. Có 3 loại chất liệu gỗ công nghiệp được sử dụng phổ biến nhất trong sản xuất tủ gỗ là: gỗ MDF, gỗ MFC và gỗ HDF.
Ưu điểm
Tủ gỗ công nghiệp đựng quần áo có những ưu điểm nổi bật như sau:
- Tủ gỗ MDF chống ẩm, HDF là những chất liệu có khả năng chống mối mọt, ẩm mốc và cong vênh tốt.
- Thời gian sản xuất, gia công nhanh. Do gỗ công nghiệp không tốn thời gian để phun sơn, tẩm sấy,… như gỗ tự nhiên.
- Tủ gỗ ép bền màu theo thời gian do bề mặt được ép phủ.
- Lắp đặt và thi công dễ dàng.
- Đa dạng mẫu mã, màu sắc, vân sắc cho khách hàng lựa chọn.
- Tủ gỗ công nghiệp thân thiện với môi trường và an toàn cho sức khỏe người dùng.
- Giá thành rẻ hơn tủ gỗ tự nhiên.
Nhược điểm
Ngoài những ưu điểm vượt trội, tủ áo quần gỗ ép vẫn có một số nhược điểm bạn cần lưu ý:
- Tủ không được chạm trổ nhiều hoa văn cầu kỳ, tỉ mỉ như tủ gỗ tự nhiên. Họa tiết trang trí khá đơn giản nhưng sang trọng và hiện đại.
- Tủ quần áo gỗ công nghiệp chất lượng phải được sản xuất bởi những đơn vị uy tín để đảm bảo độ bền và chất lượng. Những đơn vị này cần có hệ thống máy móc và công nghệ hiện đại, tân tiến nhập khẩu từ các nước Châu Âu.
Phân loại tủ áo gỗ công nghiệp
Tủ áo gỗ công nghiệp có thể phân loại dựa theo thiết kế và dựa theo số cánh tủ.
1/ Dựa theo thiết kế
Hiện nay thị trường có rất nhiều mẫu tủ áo đa dạng về kiểu dáng và thiết kế để đáp ứng nhu cầu của khách hàng. Dưới đây là một số kiểu dáng và thiết kế tủ áo gỗ phổ biến nhất hiện nay:
Tủ đồ thiết kế cánh mở
Tủ đồ cánh mở là loại tủ truyền thống với cánh có thể mở ra. Thiết kế này thường mang lại sự tiện lợi trong việc lấy đồ và dễ dàng sắp xếp không gian bên trong. Tủ đồ cánh mở thường có nhiều kích thước và kiểu dáng, phù hợp với nhiều phong cách nội thất.

Tủ quần áo cửa lùa
Tủ áo cửa lùa sử dụng hệ thống cửa trượt, giúp tiết kiệm không gian và dễ dàng sử dụng. Loại tủ này rất thích hợp cho những căn phòng nhỏ, nơi không có đủ không gian để mở cánh tủ. Thiết kế hiện đại của tủ cửa lùa cũng mang lại vẻ sang trọng cho không gian sống.

Tủ quần áo cánh kính
Tủ quần áo cánh kính kết hợp giữa gỗ và kính, tạo cảm giác thoáng đãng và hiện đại. Cánh kính giúp người dùng dễ dàng nhìn thấy nội thất bên trong, đồng thời tạo điểm nhấn thẩm mỹ cho căn phòng. Loại tủ này thường được sử dụng trong các không gian sang trọng hoặc hiện đại.

Tủ quần áo gỗ công nghiệp thiết kế âm tường
Mẫu thiết kế tủ quần áo âm tường là mẫu thiết kế nằm tủ nằm gọn trong 1 hốc tường. Mẫu thiết kế này được các KTS chủ ý thiết kế với mục đích biến không gian xung quanh trở nên gọn gàng và vuông vức hơn. Các mẫu tủ kiểu này cũng có thể là ý tưởng xuất phát bởi sự tình cờ, phù hợp với thiết kế phần cứng của ngôi nhà. Trong quá trình khảo sát thiết kế nội thất, đơn vị thiết kế sản xuất nội thất phát hiện thấy điểm phù hợp này và đề xuất điều đó với khách hàng của mình.

Tủ quần áo kịch trần
Mẫu tủ quần áo có thiết kế kịch trần cũng là một trong những giải pháp được các KTS, các đơn vị sản xuất tủ đựng quần áo đưa ra nhằm mục đích biến không gian xung quanh trở nên gọn gàng, ngăn nắp hơn. Đây là mẫu thiết kế được ưa chuộng nhất hiện nay. Các mẫu thiết kế này phù hợp với các không gian có chiều cao từ 2,9 m – 3,2 m. Đây là chiều cao lý tưởng, giúp người dùng dễ sử dụng & thiết kế có sự cân đối.

Mẫu tủ quần áo gỗ công nghiệp thiết kế liền giường
Cuộc sống hiện đại tại các thành phố lớn đông đúc, nơi mưu sinh của nhiều nhóm lao động. Biến không gian sống tại các thành phố lớn cũng trở nên thu hẹp hơn. Tủ quần áo gỗ công nghiệp thiết kế liền giường là một giải pháp khác nhằm tiết kiệm tối đa không gian bày trí nội thất phòng ngủ; xong vẫn đáp ứng đủ các tiêu chí về công năng sử dụng.

Đây là mẫu tủ quần áo thường được bày trí trong không gian nội thất tân cổ điển, mang phong cách châu âu. Ưu điểm nổi bật của sản phẩm là có tính thẩm mỹ, sang trọng cao, có sẵn giường ngủ.
2/ Phân loại tủ quần áo gỗ công nghiệp theo số cánh tủ
Các mẫu tủ được phân loại theo số cánh tủ phụ thuộc vào kích thước chiều ngang của tủ. Số cánh tủ được tính cho số cánh tủ chính, phần có kích thước lớn.
Hiện nay có nhiều mẫu tủ quần áo gỗ công nghiệp từ 2 – 3 – 4 – … n cánh. Trung bình mỗi cánh tủ sẽ có kích thước bề ngang từ 55 – 80 cm. Phổ biến nhất là thiết kế cánh 60 cm.
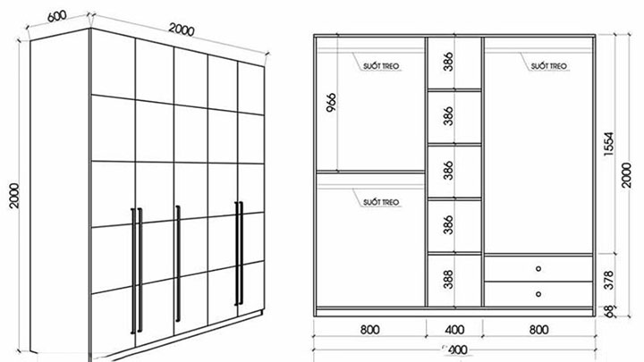
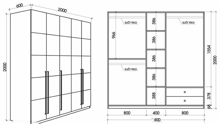
Cấu tạo tủ áo gỗ công nghiệp
Tủ áo gỗ công nghiệp bao gồm:

1/ Giá treo
Là mắc treo những bộ quần áo dài như đồ Âu phục, dạ hội, áo khoác. Nhờ giá treo mà quần áo được giữ phẳng và ngay ngăn, tránh bị nhăn. Giá treo thường có chiều cao tầm 1m – 1.2m.
2/ Hộc tủ
Là nơi cất giữ quần áo được xếp gọn gàng hoặc đồ đạc liên quan đến trang phục. Tủ quần áo thường có nhiều hộc tủ quần áo gỗ công nghiệp nhằm giúp người dùng sắp xếp đồ đạc theo mùa dễ dàng.
3/ Ngăn kéo
Bộ phận này không phải tủ quần áo nào cũng có. Tuy nhiên, với những thiết kế hiện đại thì có 2 loại ngăn kéo: ngăn kéo có khóa dùng để cất giữ đồ dùng cá nhân như giấy tờ, sổ sách và ngăn kéo dùng để cất quần áo hoặc đồ ngủ, nội y. Đa phần ngăn kéo được thiết kế với chiều cao không quá 30cm.
4/ Gương
Không hiếm các thiết kế được gắn thêm gương giúp người dùng có thể thử đồ, phối đồ tiện lợi. Gương thường được lắp một bên cánh tủ giúp bạn quan sát chính mình dễ dàng.

5/ Chân đế
Thông thường tủ quần áo gỗ công nghiệp có thêm chân đế nhằm đảm bảo khoảng cách từ mặt đất lên sàn tủ. Tùy vào nhà sản xuất để lựa chọn độ dày của chân đế là 5cm – 10cm. Nhờ chi tiết này mà hạn chế tình trạng ẩm thấp ảnh hưởng đến chất lượng tủ cũng như quần áo được bảo quản bên trong.
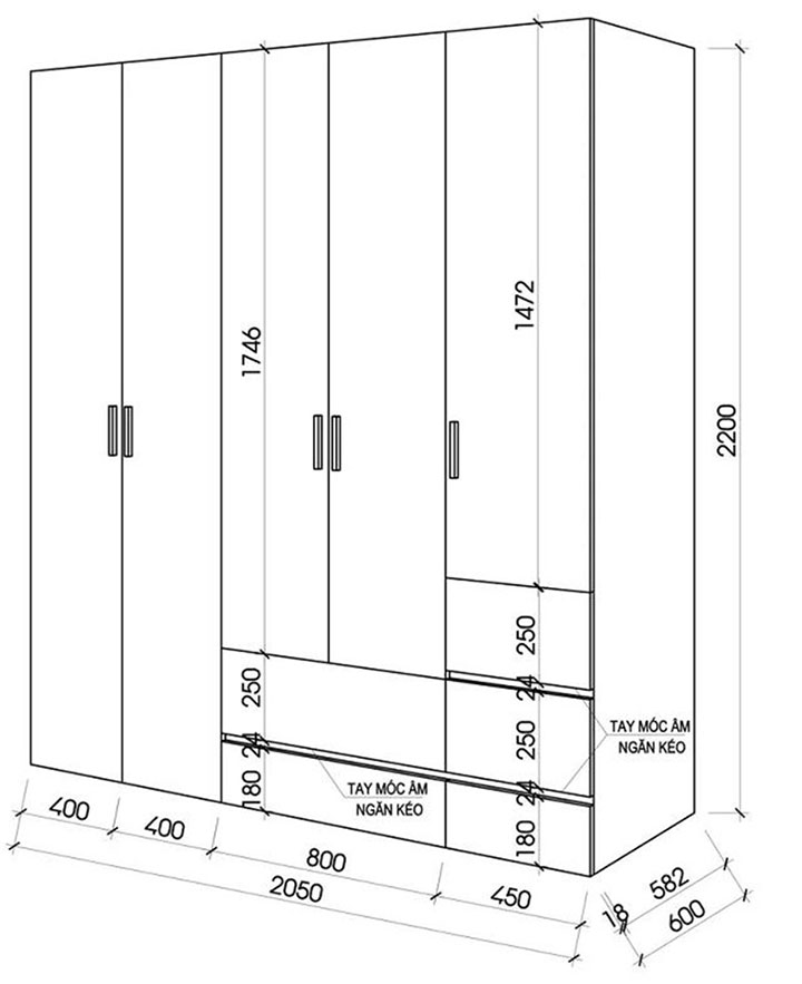
6/ Cánh tủ
Tùy vào kích thước thiết kế để tạo số lượng cánh tủ phù hợp. Thị trường mang đến các mẫu sản phẩm 2 cánh, 3 cánh, 4 cánh, 6 cánh với khoảng cách thoải mái. Mỗi cánh tủ tương ứng với mỗi buồng giúp bạn sắp xếp đồ đạc khoa học và gọn gàng.
Tiêu chuẩn kích thước tủ quần áo gỗ công nghiệp bạn cần biết
Một trong số đồ dùng cần thiết của các gia đình Việt đó là tủ quần áo. Chính vì thế, việc đóng hay mua mới tủ quần áo luôn là vấn đề được các gia chủ quan tâm chú trọng. Trong đó, yếu tố giúp tủ quần áo luôn bền đẹp và đáp ứng công năng đó là phải thiết kế theo một kích thước tiêu chuẩn, phù hợp với bố trí của căn phòng. Dưới đây, KTS giàu kinh nghiệm tại Foxury Home sẽ tư vấn cho bạn về các thông số kích thước tủ quần áo cửa lùa tiêu chuẩn.

Tiêu chuẩn về chiều rộng
Chiều rộng tiêu chuẩn của 1 cánh tủ áo không vượt quá 80cm. Nếu không đáp ứng kích thước này thì cánh tủ sẽ rất nặng và khó có thể kéo trượt sang hai bên. Như vậy, chắc chắn rằng sẽ ảnh hưởng không hề nhỏ đến độ bền, chắc chắn của cánh tủ áo.
Tiêu chuẩn về chiều sâu
Đối với bất kì loại tủ quần áo nào, dù là tủ quần áo thông thường hay tủ quần áo cửa lùa,… thì đều nên để chiều sâu là 60cm. Đây là con số được tạo ra từ việc nghiên cứu nhân trắc học. Đối với người Việt Nam, tầm với tay tối đa chỉ khoảng 60cm. Vì thế, kích thước tủ quần áo cửa lùa có chiều sâu 60cm sẽ giúp cho việc lấy đồ trở nên dễ dàng, đúng tầm với.

Tiêu chuẩn về chiều cao
Chiều cao của tủ quần áo cửa lùa không giới hạn, tùy thuộc vào không gian sống và chiều cao trần nhà của mỗi gia đình. Tuy nhiên, tủ quần áo cánh lùa cũng có kích thước chiều cao tiêu chuẩn là 2,2m – 2,4m.
Thiết kế tủ quần áo cửa lùa thường được chia làm 2 phần: phần bên dưới thực hiện công năng chính là lưu trữ và bảo quản các loại quần áo mặc hàng ngày. Phần bên trên được sử dụng để bảo quản các loại quần áo trái mùa hay các loại đồ đạc ít khi sử dụng đến như chăn ga mùa đông,…
Kích thước tủ áo gỗ công nghiệp
Để chọn được kích thước tủ quần áo phù hợp, bạn cần lưu ý đến diện tích phòng, không gian để đặt tủ áo, nhu cầu lưu trữ và kiểu dáng thiết kế để lựa chọn mẫu tủ áo phù hợp nhất. Hoặc bạn có thể tham khảo cách đơn giản hơn là liên hệ tới cửa hàng nội thất và cung cấp thông tin về hiện trạng không gian cũng như mong muốn của mình để được tư vấn mẫu tủ gỗ quần áo gỗ công nghiệp ưng ý và phù hợp nhất.
Dưới đây là kích thước tủ áo gỗ công nghiệp phổ biến:
1/ Kích thước tủ quần áo 1 cánh
Những mẫu tủ quần áo có thiết kế 1 cánh thường có kích thước tầm trung. Đa phần, những không gian phòng ngủ diện tích không quá lớn sẽ ưu tiên loại tủ này, chẳng hạn như: căn hộ mini, nhà cấp 4, phòng ngủ cá nhân,… Tủ quần áo 1 cánh thường sẽ có kích thước phổ biến như sau:

- Chiều cao: tối đa là 2m hoặc có thể cao hơn một chút. Vì thông thường khách hàng chọn dòng tủ này là đối tượng có nhu cầu chứa đựng không cao.
- Chiều dài: tối thiểu đạt 800mm, cũng có thể thấp hơn hoặc cao hơn, tùy vào diện tích không gian
- Chiều sâu: từ 400mm đến 500mm sẽ có được sự hài hòa và cân xứng nhất cho hệ tủ.
2/ Kích thước của tủ quần áo gỗ công nghiệp 2 cánh 2 buồng
Kích thước tủ quần áo 2 cánh với 2 buồng là thiết kế thích hợp với phòng trọ hoặc phòng ngủ cá nhân có diện tích nhỏ. Những chiếc tủ này rất phổ biến và được những bạn trẻ độc thân hoặc đang là học sinh – sinh viên sử dụng.
Kích thước thông dụng của tủ:
- Chiều cao: từ 220cm – 240cm
- Chiều sâu tủ quần áo: 60cm
- Chiều rộng: 120cm
3/ Kích thước tủ quần áo 2 buồng tiêu chuẩn
Tủ quần áo gỗ công nghiệp 2 buồng thường có 2 – 4 cánh với kích thước tiêu chuẩn như sau:
- Kích thước tủ quần áo gỗ công nghiệp 2 buồng 2 cánh: Chiều rộng 1,2m * chiều cao 2,2m * chiều sâu 0,6m. Phù hợp cho 1 người sử dụng.
- Kích thước tủ quần áo gỗ công nghiệp 2 buồng 3 cánh: Chiều rộng 1,5m * chiều cao 2,2m * chiều sâu 0,6m. Phù hợp cho 2 người sử dụng.
- Kích thước tủ quần áo gỗ công nghiệp 2 buồng 4 cánh: Chiều rộng 2,4m * chiều cao 2,2m * chiều sâu 0,6m. Phù hợp cho 2 người sử dụng. Phù hợp cho 2 người với 1 trẻ nhỏ.

4/ Kích thước tủ quần áo 3 buồng 4 cánh
Tủ quần áo 3 buồng 4 cánh phù hợp với phòng ngủ có diện tích lớn tạo nên sự hài hoà cho không gian sống. Kích thước tiêu chuẩn là rộng 2m * cao 2,1m * sâu 0,6 – 0,8m.

5/ Tiêu chuẩn kích thước tủ quần áo 4 buồng
Mẫu tủ quần áo 4 buồng được thiết kế cho những căn phòng có diện tích rộng. Tủ có nhiều ngăn riêng biệt bên trong giúp bạn dễ phân chia đồ đạc theo từng tần suất sử dụng.

Kích thước tủ quần áo tiêu chuẩn thông dụng:
- Chiều cao: 220cm
- Chiều sâu tủ quần áo: 60cm
- Chiều rộng: 240cm
6/ Kích thước tủ quần áo 5 cánh tiêu chuẩn
Loại tủ quần áo gỗ công nghiệp 5 cánh là loại có thiết kế đặc biệt, giúp không gian căn phòng thêm sang trọng và nổi bật hơn. Loại tủ này được chia thành 5 cánh lớn – nhỏ khác nhau.
Kích thước tủ quần áo tiêu chuẩn thông dụng:
- Chiều cao: 240cm
- Chiều sâu tủ quần áo: từ 60cm – 80cm
- Chiều rộng: 260cm – 280cm

7/ Kích thước tiêu chuẩn tủ quần áo 6 cánh
Nếu bạn cần một chiếc tủ lớn đủ sức chứa quần áo cho tất cả thành viên trong gia đình, có thể cân nhắc đến mẫu tủ quần áo 6 cánh. Đương nhiên, tủ này có kích thước rất lớn hơn rõ ràng nên nó chỉ thích hợp cho những ngôi nhà hoặc phòng ngủ có diện tích to và rộng.

Kích thước thông dụng của tủ:
- Chiều cao: 240cm
- Chiều sâu tủ quần áo: 80cm
- Chiều rộng: 300cm
8/ Kích thước tiêu chuẩn tủ quần áo cánh lùa
Thiết kế này rất phù hợp với gia đình có trẻ nhỏ khi không phải lo lắng trẻ tự ý mở cánh tủ bị kẹt tay. Tuy nhiên, hạn chế của loại tủ này là bạn không thể mở cùng lúc toàn bộ các cánh cửa. Nếu cần lấy ra nhiều loại đồ đạc được đặt ở 2 bên cánh khác nhau, bạn phải đóng lại 1 cánh rồi mở cánh khác.
Kích thước tủ quần áo tiêu chuẩn thông dụng:
- Chiều cao: 200cm
- Chiều sâu: từ 55cm – 80cm
- Chiều rộng: 150cm (với loại tủ 2 cánh) và từ 150cm – 300cm (với loại tủ 3 – 4 cánh)

9/ Kích thước tiêu chuẩn của tủ quần áo tủ âm tường
Tủ không có các mẫu thiết kế sẵn nên cũng không có những quy định về kích thước. Khi xây dựng nhà mới, cần căn cứ theo nhu cầu sử dụng của chủ nhân để kiến trúc sư thiết kế kích thước cho phù hợp.

10/ Kích thước tủ quần áo trẻ em
Với những không gian phòng ngủ dành cho em bé, chắc chắn sẽ rất cần đến một chiếc tủ chứa đựng quần áo. Thông thường, các bố mẹ sẽ ưu tiên những dòng tủ mini, có màu sắc tươi mới, năng động và đáng yêu.

11/ Kích thước tủ quần áo theo lỗ ban
Với nhiều gia chủ, mọi nội thất đều phải hợp phong thủy. Hiểu được điều đó, nhà thiết kế sẽ tính kích thước tủ theo thước Lỗ Ban. Hiện nay để đo nội thất nói chung hay tủ quần áo nói riêng, người ta dùng thước Lỗ Ban 38,8cm. Thước này sẽ đo xem kích thước tủ của bạn có vào các cung đẹp hay không. Các cung đẹp với từng ý nghĩa sẽ được gia đình lựa chọn. Từ đó nhà thiết kế sẽ thi công tủ theo đúng kích thước đó. Điều này giúp cho gia chủ gặp may mắn và tài vượng trong tương lai.

12/ Kích thước tủ quần áo chữ L
Tủ quần áo chữ L là một loại tủ quần áo có thiết kế gồm hai cạnh vuông góc với nhau, tạo thành hình chữ L. Kích thước tủ quần áo chữ L tiêu chuẩn theo chiều cao, chiều rộng và chiều sâu thông dụng như sau:

- Chiều cao tiêu chuẩn của tủ quần áo chữ L thường là từ 2m đến 2.5m.
- Kích thước chiều rộng tiêu chuẩn của tủ quần áo chữ L thường là từ 1.6m đến 2m cho mỗi cạnh của tủ.
- Chiều sâu tiêu chuẩn của mẫu tủ đựng quần áo chữ L thường là từ 0.5m đến 0.6m cho mỗi cạnh của tủ.
Địa chỉ bán tủ quần áo gỗ công nghiệp giá rẻ 2025
Nội thất Foxury Home – Đơn vị chuyên tư vấn, thiết kế và thi công trọn gói tủ quần áo cánh kính cao cấp. Đến với Foxury Home, khách hàng sẽ được tư vấn miễn phí, chu đáo và tận tình nhất. Bao gồm: hướng phong cách thiết kế, mẫu mã sản phẩm, màu sắc và chất liệu đảm bảo chất lượng, phù hợp với sở thích/ kinh phí,…

Với sự chuyên nghiệp và nhiều năm kinh nghiệm trong lĩnh vực nội thất, Foxury Home tin rằng sẽ đáp ứng mọi yêu cầu của bạn, kể cả với những khách hàng khó tính nhất. Với kinh nghiệm hơn 5 năm hoạt động trong lĩnh vực đóng lắp đồ gỗ nội thất, Foxury Home tự tin mang đến các sản phẩm tủ gỗ quần áo gỗ công nghiệp mà vẫn đảm bảo chất lượng.
Hotline: 0896118555 – 0896119555
